Планування ЖК KADORR City

Одеса Малиновський р-н

вул. Краснова

ЖК KADORR City

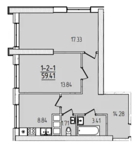
2-56.87

2-к. квартира56.9 м2

Планування 2-56.87

Ціна за м²:

від 37 433 грн/м2

Розміщення:

60 перлина

Введення в експлуатацію:

Початкова дата: 2 квартал 2023 4 квартал 2024

Стадія будівництва:

введений в експлуатацію

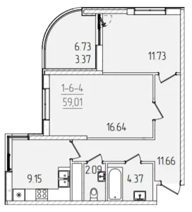
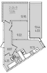
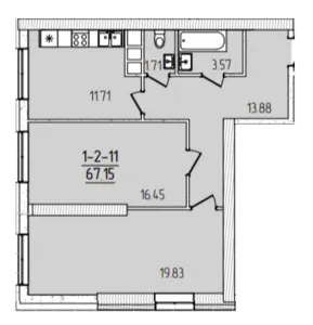
Інші 2-кімнатні планування

Увійдіть до особистого кабінету для керування

Увійти

Ваш запит принято

Відділ продажу зв'яжеться з Вами найближчим часом