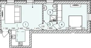
46.0 м2

КБ FAMILY BOTANIQ GARDEN
Всі будинки
Фільтр
Кількість кімнат
Площа (м²)
Тип
За замовчуванням
Сортувати
46.0 м²
67.9 м²
79.3 м²
від 124.3 м² до 124.7 м²
Увійдіть до особистого кабінету для керування
УвійтиВаш запит принято
Відділ продажу зв'яжеться з Вами найближчим часом