Планировки ЖК KADORR City

Одесса Малиновский р-н

ул. Краснова

ЖК KADORR City

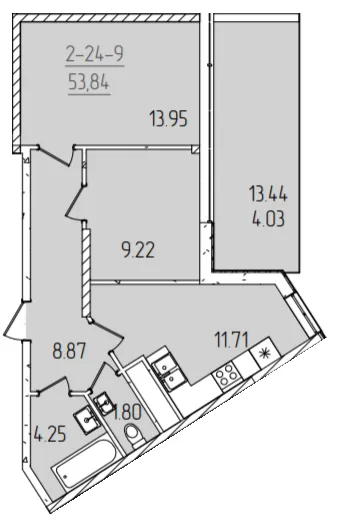
2-53.84

2-к. квартира53.8 м2

Планировка 2-53.84

Цена за м²:

от 38 422 грн/м2

Расположение:

63 жемчужина

Ввод в эксплуатацию:

Первоначальная дата: 4 квартал 2023 4 квартал 2024

Стадия строительства:

построен (не введен)

Другие 2-комнатные планировки

Войдите в личный кабинет для управления

Войти

Ваш запрос принят

Отдел продаж свяжется с Вами в ближайшее время