Планировки ЖК Уютный

Одесса Малиновский р-н

ул. Михаила Грушевского / ул. Генерала Плиева, 1

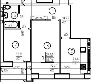
2-52.14

2-к. квартира52.1 м2

Планировка 2-52.14

Цена за м²:

н.д.

Расположение:

6 секция

Ввод в эксплуатацию:

Первоначальная дата: 3 квартал 2020 4 квартал 2021

Стадия строительства:

строится

Другие 2-комнатные планировки

Войдите в личный кабинет для управления

Войти

Ваш запрос принят

Отдел продаж свяжется с Вами в ближайшее время