Планировки ЖК Уютный

Одесса Малиновский р-н

ул. Михаила Грушевского / ул. Генерала Плиева, 1

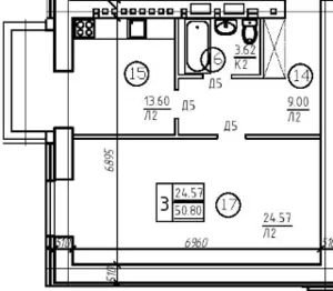
2-50.15

2-к. квартира50.2 м2

Планировка 2-50.15

Цена за м²:

н.д.

Расположение:

5 секция

Ввод в эксплуатацию:

Первоначальная дата: 2 квартал 2020 1 квартал 2021

Стадия строительства:

введен в эксплуатацию

Другие 2-комнатные планировки

Войдите в личный кабинет для управления

Войти

Ваш запрос принят

Отдел продаж свяжется с Вами в ближайшее время