60 м2
ЖК Центральный-2
60 м2
62,7 м2
66,6 м2
77,8 м2
52,4 м2
52,4 м2
53,2 м2
53,9 м2
54,3 м2
55,71 м2
56,35 м2
60,46 м2
62,09 м2
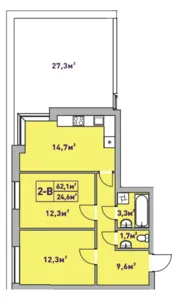
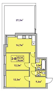
62,1 м2
62,1 м2
63,41 м2
63,5 м2
63,5 м2
65,6 м2
67,3 м2
69,6 м2
69,6 м2
79,4 м2
51,6 м2
52,4 м2
53,9 м2
54,3 м2
55,71 м2
56,35 м2
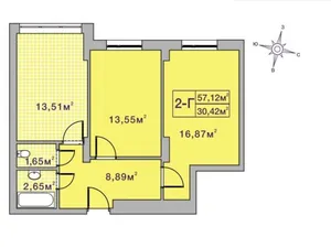
57,12 м2
60,46 м2
62,09 м2
62,1 м2
63,26 м2
63,5 м2
63,93 м2
65,71 м2
65,98 м2
66,42 м2
66,71 м2
67,3 м2
69,6 м2
69,63 м2
71,54 м2
79,4 м2
87,01 м2
Войдите в личный кабинет для управления
ВойтиВаш запрос принят
Отдел продаж свяжется с Вами в ближайшее время