52,89 м2
ЖК на Кондратюка
52,89 м2
62,02 м2
42,18 м2
42,32 м2
43,05 м2
43,08 м2
43,48 м2
44,36 м2
44,36 м2
44,41 м2
44,88 м2
44,92 м2
45,18 м2
45,3 м2
47,56 м2
48,71 м2
48,87 м2
49,53 м2
50,97 м2
52,86 м2
54,34 м2
54,34 м2
57,92 м2
60,47 м2
60,79 м2
81,23 м2
82,41 м2
87,12 м2
87,14 м2
87,75 м2
87,78 м2
92,57 м2
92,57 м2
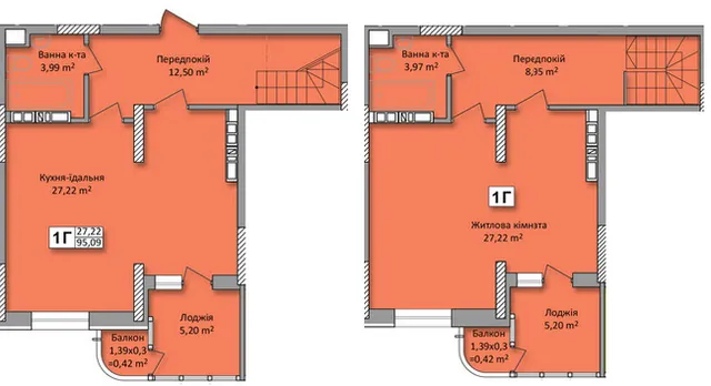
95,09 м2
96,33 м2
96,42 м2
100,64 м2
100,64 м2
105,42 м2
105,54 м2
Войдите в личный кабинет для управления
ВойтиВаш запрос принят
Отдел продаж свяжется с Вами в ближайшее время