Планировки ЖК Миронова

Днепр Шевченковский р-н

ул. Европейская (Миронова), 9 а, 11, 5

ЖК Миронова

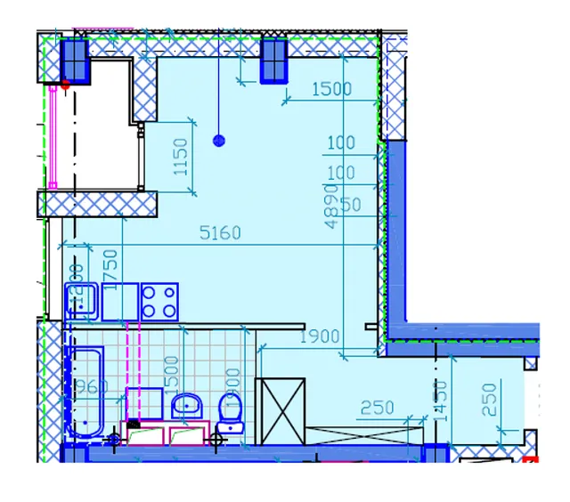
1-32.93

1-к. квартира32.9 м2

Планировка 1-32.93

Цена за м²:

н.д.

Расположение:

2 дом (секция А1)

Ввод в эксплуатацию:

Первоначальная дата: 2 квартал 2021 3 квартал 2021

Стадия строительства:

строится

Другие 1-комнатные планировки

Войдите в личный кабинет для управления

Войти

Ваш запрос принят

Отдел продаж свяжется с Вами в ближайшее время