КГ Крушинские Озера: Проект New York

Киевская область с. Крушинка

ул. Кибенка

КГ Крушинские Озера

/2

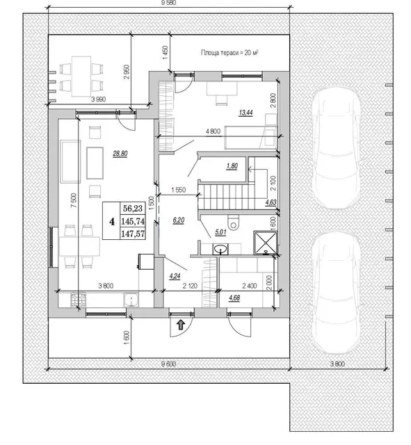
Проект New York147.6 м2

Коттедж

Цена проекта:

от 99 000 usd

Этажность:

2 этажа

К-во спален:

4 спальни

Ввод в эксплуатацию:

н.д.

Стадия строительства:

в проекте

Войдите в личный кабинет для управления

Войти

Ваш запрос принят

Отдел продаж свяжется с Вами в ближайшее время